Thông tin vòi sen cây tắm INAX BFV-1115S nóng lạnh
- Sen cây tắm Inax BFV1115S đến từ thương hiệu thiết bị vệ sinh INAX
-
Kết hợp giữa bộ sen tắm BFV-1113S-4C và bộ phụ kiện sen cây cao cấp
-
Bát sen được thiết kế đặc biệt giúp cho phun nước đều
-
Áp lực nước : 0.05 MPa ~ 0.75 MPa
-
Lớp mạ Cr/Ni chất lượng cao
-
Sen được thiết kế với đĩa Cartridge bền bỉ và giúp tiết kiệm nước
-
Tay vặn vòi tiết kiệm nước, vòi nước ít chì
-
Dễ dàng và tiện lợi khi sử dụng, mẫu mới
-
Có thể điều chỉnh độ cao của vòi
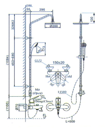
Bản vẽ vòi sen cây Inax BFV-1115S-4C












