Phụ Kiện Phòng Tắm TOTO
Lô giấy vệ sinh ToTo YH408RV
(455 đánh giá)
Còn hàng
- Mã sản phẩm: YH408RV
- Thương hiệu: TOTO
- Bảo hành: Theo quy định của nhà sản xuất
- Công nghệ sản xuất: Nhật Bản.
- Vận chuyển: Miễn phí nội thành Hà Nội.
- Lắp đặt: Hỗ trợ lắp đặt – Chi phí thỏa thuận.
Giá gốc là: 960,000 ₫.748,800 ₫Giá hiện tại là: 748,800 ₫.
Thông tin cơ bản lô giấy vệ sinh TOTO YH408RV
- Bộ sưu tập L SERIES của hãng thiết bị vệ sinh TOTO
- Mã sản phẩm: YH408RV
- Tên sản phẩm: Móc giấy vệ sinh
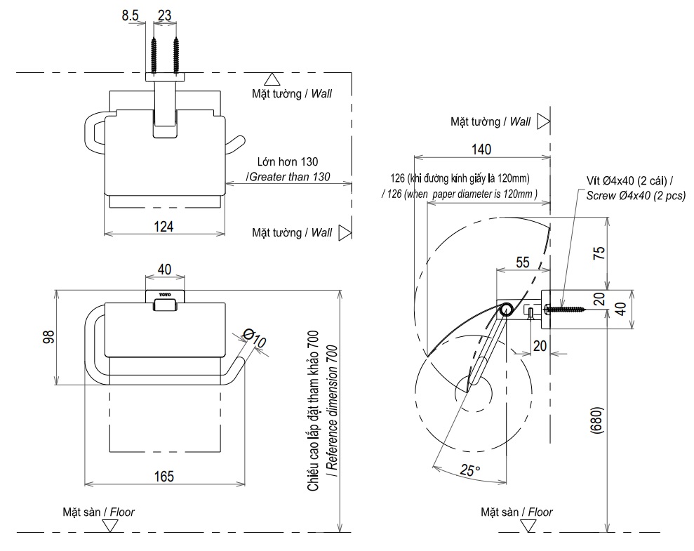
- Kích thước: 165 x 126 x 98 mm
Tính năng móc giấy vệ sinh YH408
- Thiết kế hiện đại sang trọng hài hòa với dòng sản phẩm BASIC+
- Lớp mạ bền vững với thời gian
Bản vẽ hộp đựng giấy vệ sinh YH408RV TOTO







