Mô tả
TÍNH NĂNG SẢN PHẨM:
- Mở khóa bằng nhận diện FACE ID 3D.
- Chức năng gọi Video Call.
- Mở khóa từ xa bằng App Wifi.
- Mở khóa bằng vân tay, công nghệ FPC Thụy Điển
- Mở khóa bằng thẻ từ.
- Mở khóa bằng mật mã.
- Chìa khóa khẩn cấp dự phòng chống sao chép.
CHỨC NĂNG:
- Chức năng Video Call và chế độ mở khóa bằng Remote
- Chức năng nhận diện chính xác cặp song sinh, đèn cảm ứng bằng hồng ngoại không lo ánh sáng yếu.
- Nhận diện khuôn mặt, vân tay bằng sinh trắc học công nghệ FPC Thụy Điển
- Mật khẩu chống nhìn trộm.
- Chức năng thoát hiểm từ bên trong.
- Tay nắm có thể đổi chiều trái/phải.
- Cảnh báo đột nhập.
- Khóa tự động, tắt khóa bằng 1 nút.
- Có thể thiết lập thời gian tự động tắt khóa.
- Chống hack và chống phá khóa.
- Vô hiệu hóa thẻ bị mất.
- Màn hình: HD
- Nhận dạng khuôn mặt : 100
- Vân tay: 100
- Số thẻ từ (cài đặt, sử dụng) : 100
- Mật mã: 5 nhóm
- Thẻ từ theo máy: 2
- Chìa khóa chống sao chép : 2
- Cơ chế đóng mở : Động cơ DC siêu nhỏ
- Nhiệt độ làm việc :-20C – 70C
- Độ ẩm tương đối: 10% – 95%
- Màu hoàn thiện: Đen – xám
- Bảo hành: 3 năm
- Pin Lithium : Bảo hành 12 tháng
VẬT LIỆU:
- Nhôm đúc CNC nguyên khối
- Nhựa ABS chống cháy
- Thân khóa thép không gỉ SUS 304
Thông số kỹ thuật
THÔNG SỐ KỸ THUẬT:
Kích thước thân khóa : 78 x 437 mm
Nguồn cung cấp : 7,4V (Pin lithium – kép)
Dòng điện tĩnh: < 60 – 120 µA
Dòng điện hoạt động : < 300 mA
Tuổi thọ pin: Mở cửa 4.000 lần
Nguồn điện khẩn cấp : 5V-2A, Micro USB
Dây cáp sạc: Có
Độ dày cửa: 35 – 90 mm
Độ rộng đố cửa: > 100 mm
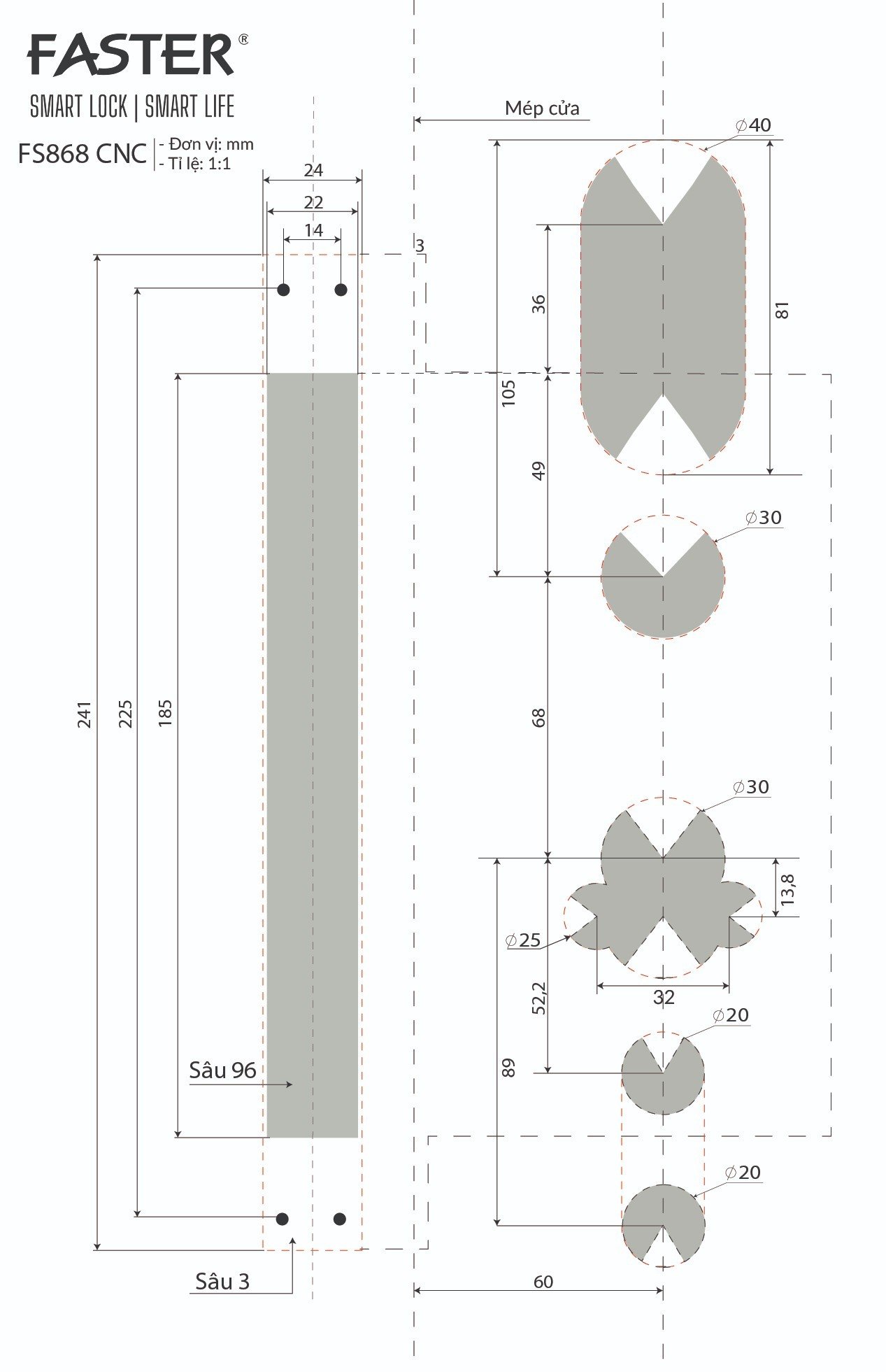
BẢN VẼ THI CÔNG THÂN KHÓA













