Thông tin lavabo Viglacera V29 đặt bàn
- Mã sản phẩm: Viglacera V29
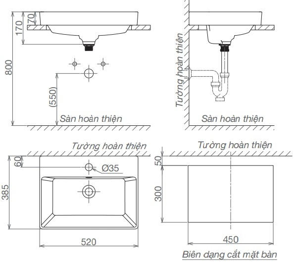
- Loại sản phẩm: Chậu rửa Lavabo đặt trên bàn đá.
- Màu sắc: Màu trắng
- Kích thước: 520 x 385 x 170 mm (DxRxC)
- Công nghệ: Italy
- Nơi sản xuất: Việt Nam
- Không bao gồm phụ kiện (vòi, bộ xả…)
Tính năng chậu rửa mặt V29 Viglacera
- Thiết kế đơn giản, sang trọng
- Lòng chậu sâu, rộng rãi giúp thoải mái khi sử dụng
- Thiết kế với lỗ thoát tràn
- Men Nano nung: Diệt khuẩn, chống bám dính.











