Thông tin Chậu rửa âm bàn Inax AL-2298V
- Hãng sản xuất : Inax
- Xuất xứ : Việt Nam
- Công nghệ : Nhật Bản
- Màu sản phẩm : Trắng
- Loại : Chậu rửa âm bàn
- Kiểu dáng: chậu đặt âm bàn, sang trọng, dễ vệ sinh
Thiết kế: Dáng vuông hiện đại với các góc tròn mềm mại, hài hòa, dễ dàng thi công.
Chất liệu: Sứ cao cấp với công nghệ AQUA CERAMIC chống bám bẩn, cho men sứ 100 năm bền đẹp
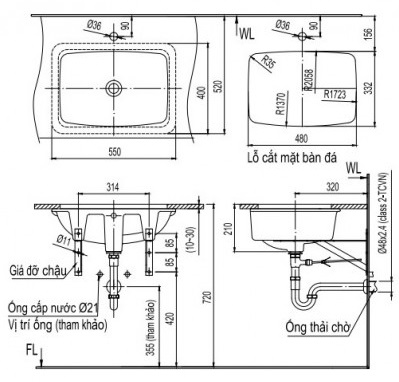
Lỗ thoát tràn tiện lợi - Kích thước : 561x190x411 mm
Tính năng chậu L-2298V
- Chậu rửa Lavabo thường được dùng trong trang trí nội thất nhà tắm, spa, nhà hàng, khách sạn,
- Thiết kế: Dáng vuông độc đáo, hiện đại với các góc tròn mềm mại, hài hòa, đường nét tinh tế một cách tối giản.
- Tạo thêm điểm nhấn trong không gian phòng tắm của bạn.
- Sản xuất theo tiêu chuẩn chất lượng Châu Âu. Giá cả rẻ nhất so với sản phẩm cùng loại.
Hình ảnh sản phẩm
Bản vẽ bồn rửa mặt lavabo Inax AL-2298V













