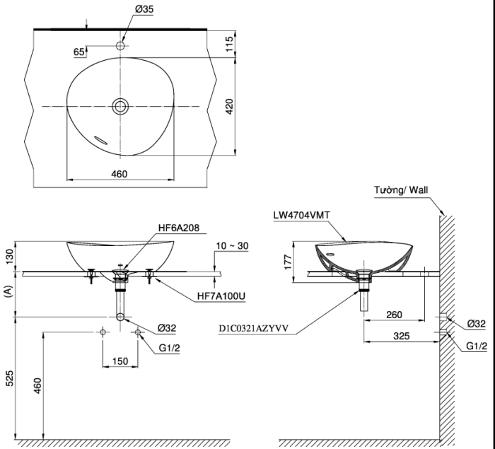
Thông số kỹ thuật:
- Tên sản phẩm: Chậu lavabo đặt bàn TOTO
- Thương hiệu: TOTO
- Model: LT4704MTG19
- Màu: Trắng mờ
- Loại: Chậu lavabo đặt bàn
- Kích thước: L420 x W460 x H177 mm
- Vật liệu: Linear Ceram
Tính năng:
-
Viền chậu siêu mỏng 4mm
-
Chất liệu Linear Ceram siêu bền
Mô tả chi tiết Chậu lavabo cao cấp đặt bàn LT4704MTG19CMW
Chậu lavabo cao cấp đặt bàn LT4704MTG19CMW là mẫu chậu rửa có hình dáng vô cùng độc đáo với các cạnh cong nhẹ bất quy tắc nhưng vẫn đủ mềm mại và uyển chuyển.
Đặc biệt, chậu sử dụng công nghệ LINEAR CERAM với phần cạnh viền siêu mỏng đẹp tinh tế.Với chất liệu sứ vệ sinh kết hợp lớp men CEFIONTECT, sản phẩm sẽ luôn trắng sáng, đẹp bền bỉ trong không gian nhà tắm của bạn.
Bản vẽ kỹ thuật:












