Bồn Tiểu Nam TOTO
Bồn tiểu nam treo tường TOTO UT570T
(823 đánh giá)
Còn hàng
- Mã sản phẩm: UT570TXW
- Thương hiệu: TOTO
- Bảo hành: Theo quy định của nhà sản xuất
- Công nghệ sản xuất: Nhật Bản.
- Vận chuyển: Miễn phí nội thành Hà Nội.
- Lắp đặt: Hỗ trợ lắp đặt – Chi phí thỏa thuận.
Giá gốc là: 6,097,000 ₫.4,755,660 ₫Giá hiện tại là: 4,755,660 ₫.
Thông tin bồn tiểu nam TOTO UT570T treo tường
- Bồn tiểu nam TOTO UT570T treo tường của hãng thiết bị vệ sinh TOTO
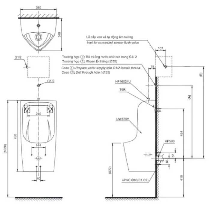
- Kích thước : 380 x 340 x 750 mm
- Áp lực nước: 0.07MPa ~ 0.75MPa
- Lượng nước xả: 2L
- Màu sắc: Màu trắng
- Xuất xứ: Việt Nam
Tính năng TOTO UT570T
- Thiết kế nhỏ gọn, tiện dụng với vách ngăn tạo không gian riêng tư
- Chế độ xả trải đều mạnh mẽ
- Có thể lắp đặt với van xả cảm ứng (tùy chọn)
- Công nghệ CeFiONtect giúp bề mặt chậu rửa siêu nhẵn, hạn chế tối đa các vết bẩn, vi khuẩn
Bản vẽ kỹ thuật











