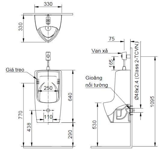
Thông tin cơ bản bồn tiểu nam INAX U-431V
-
Bồn tiểu nam cải tiến tiết kiệm nước, chống bám bẩn đến từ thương hiệu thiết bị vệ sinh INAX
-
Đã bao gồm gioăng nối tường UF-13AWP(VU)
-
Màu sắc: Trắng
-
Kích thước: 330 x 330 x 640 mm
-
Phù hợp với loại van xả: UF-7V, OKUV-120S(A), OKUV-30SM, UF-3VS
-
Bồn tiểu được thiết kế nhỏ gọn, tiện dụng tạo nên không gian đẹp
-
Chế độ xả thẳng, đều mạnh mẽ, tiết kiệm nước với mục xả 2L
Bản vẽ bệ tiểu nam treo tường U431V INAX












