Thông tin bồn cầu Viglacera V809 Nano Titan
-
Bồn cầu Viglacera một khối Nano Titan V809
-
Xả nhấn 2 chế độ tiết kiệm nước 3-6 lít / 1 lần xả.
-
Bề mặt phủ lớp men Nano Titan kháng khuẩn, chống bám bẩn.
-
Nắp bồn cầu đóng êm không gây ồn, bể vỡ.
-
Nắp rơi êm
-
Tặng vòi xịt VG826
-
Công nghệ xả xoáy 3 cửa TURBO VORTEX kết hợp cửa đẩy Siphon Jet
-
Áp lực nước: 0.05 MPa ~ 0.75 MPa
-
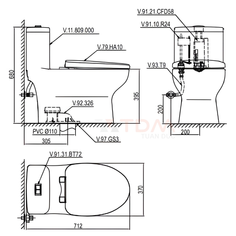
Kích thước: 670 x 330 x 757mm (Dài x Rộng x Cao).
-
Tâm thoát: 305 mm
-
Màu sắc: Trắng
-
Công nghệ: Ý
-
Sản xuất tại Việt Nam
Tính năng bàn cầu 1 khối V809 Viglacera xả xoáy
-
Bồn cầu két liền 1 khối vững chắc, sang trọng.
-
Hệ thống xả xoáy tạo lực xoáy hút mạnh mẽ.
-
Thiết kế vành Rim kín giúp dễ dàng vệ sinh.
-
Bệ ngồi làm từ vật liệu kháng khuẩn dày cứng chắc.
-
Bảo hành: men sứ 10 năm, phụ kiện 30 tháng.
-
Bao gồm: Bồn cầu liền khối, phụ kiện xả, nắp bồn cầu.
Bản vẽ kích thước bệt Viglacera V 809









