Sản phẩm khác
Bồn cầu hai khối TOTO CS838DE2 kèm nắp rửa cơ TCW07S
(136 đánh giá)
Còn hàng
- Mã sản phẩm: CS838DE2
- Thương hiệu: TOTO
Bảo hành Theo quy định hãng
Vận chuyển Miễn phí nội thành Hà Nội
Lắp đặt Hỗ trợ lắp đặt – chi phí Thỏa thuận
Giá gốc là: 11,124,000 ₫.8,676,720 ₫Giá hiện tại là: 8,676,720 ₫.
Thông tin bồn cầu TOTO CS838DE2 nắp rửa cơ
- Tên sản phẩm: Bồn cầu TOTO hai khối nắp rửa cơ TCW07S
- Mã sản phẩm: CS838DE2#XW
- Thiết kế : Thân dài
- Hệ thống xả : Tornado
- Loại xả: 2 nút nhấn 4.5/ 3.0 (L)
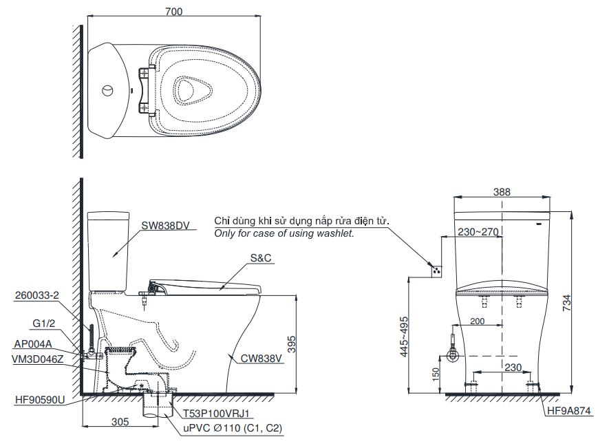
- Tâm xả: 305 (mm)
- Kích thước (DxRxC): 700 x 388 x 734 mm
- Mặt nước đọng: 143 x 105 (mm)
- Đường kính đường thải: ∅63 (mm)
- Màu sắc: Màu trắng
- Xuất xứ: Việt Nam
Tính năng bàn cầu tự rửa CS838 E2 TOTO
- Bồn cầu nắp rửa cơ C838 được thiết kế sang trọng
- Nắp đóng êm kèm vòi rửa nước lạnh Eco-washer
- Phù hợp lắp đặt với nắp rửa điện tử WASHLET (tùy chọn)
- Thiết kế bồn cầu thân kín, vành kín tiện dụng cho việc vệ sinh hàng ngày
- Bề mặt nước rộng giúp ngăn mùi hiệu quả
- Công nghệ CeFiONtect giúp lòng bàn cầu siêu nhẵn, hạn chế tối đa các vết bẩn, vi khuẩn
- Công nghệ xả Tornado êm, mạnh mẽ hiệu quả
- Không cần điện
- Đơn giản, dể sử dụng
- Dể dàng lắp đặt với cả bồn cầu thân dài và thân tròn
Xí bệt TOTO CS838 DE2 gồm có
- Thân cầu: C838 – Xuất xứ: Việt Nam
- Két nước: S838D – Xuất xứ: Việt Nam
- Nắp rửa cơ TCW07S (E2) – Xuất xứ: Inđônêxia
- Bộ cố định: HF90590U
- Mũ chụp: HF9A874
- Van dừng: AP004A
- Dây cấp: 260033-2
- Ống nối sàn: VM3D046Z
- Đệm thoát sàn: T53P100VRJ1
Bản vẽ bồn cầu nắp rửa cơ TOTO CS838E2







