Bồn Tiểu Nam TOTO
Bệ tiểu nam treo tường TOTO UT904HR (Đường cấp nước phía sau)
(868 đánh giá)
Còn hàng
- Mã sản phẩm: UT904HRXW
- Thương hiệu: TOTO
- Bảo hành: Theo quy định của nhà sản xuất
- Công nghệ sản xuất: Nhật Bản.
- Vận chuyển: Miễn phí nội thành Hà Nội.
- Lắp đặt: Hỗ trợ lắp đặt – Chi phí thỏa thuận.
Giá gốc là: 5,410,000 ₫.4,219,800 ₫Giá hiện tại là: 4,219,800 ₫.
Thông tin cơ bản bồn tiểu nam TOTO UT904HR
- Bồn tiểu nam treo tường của hãng thiết bị vệ sinh TOTO
- Mã sản phẩm đầy đủ: UT904HRXW
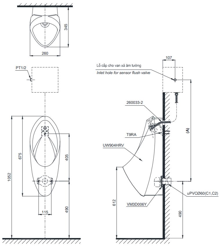
- Kích thước: 345D x 260W x 675H mm
- Áp lực nước: 0.07MPa ~ 0.75MPa
- Lượng nước xả: 0.5L
- Màu sắc: Màu trắng
- Đường cấp nước phía sau (âm)
- Xuất xứ: Việt Nam
Tính năng chậu tiểu nam UT904HR TOTO
- Thiết kế nhỏ gọn, tiện dụng với vách ngăn tạo không gian riêng tư
- Chế độ xả trải đều mạnh mẽ
Bản vẽ kỹ thuật bồn tiểu TOTO UT904HR












