Kỹ thuật
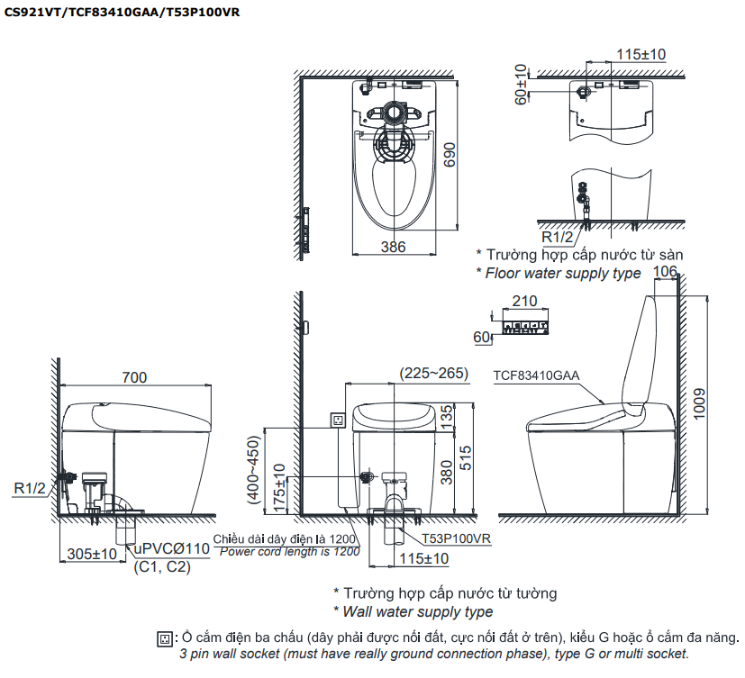
- Kích thước: L690 x W386 x H515 (mm)
- Màu sắc: Trắng
- Hệ thống xả: Tornado Hybrid
- Lượng nước xả: 3.8/3L
- Thiết kế: Thân dài, thân kín
- Tâm xả: 305mm
- Áp lực nước: 0.05 ~ 0.75 MPa
- Nguồn điện: 220V, 50/60Hz
- Màu bảng điều khiển: Bạc
- Lưu ý: Bao gồm bích nối sàn, van dừng
Tính Năng
- Men sứ chống bám bẩn CeFiONtect
- Hệ thống xả Tornado, Hybrid sinh thái siêu mạnh, siêu êm, tiết kiệm nước 3.8/3L
- Thiết kế vành kín dễ dàng vệ sinh
- Bảng điều khiển từ xa
- Công nghệ khử trùng Ewater+: vòi rửa, lòng bàn cầu
- Tự động đóng/mở nắp, phun sương, sưởi ấm bệ ngồi, khử mùi, sấy khô
- Vòi rửa massage đa chức năng
- Tự động xả sau mỗi lần sử dụng
Giới thiệu bàn cầu thông minh NEOREST RS
Bàn cầu thông minh NEOREST RS thuộc Bộ sưu tập NEOREST mới nhất, vừa được TOTO ra mắt tháng 8 năm 2023 tại Việt Nam. Sản phẩm nổi bật với hình dáng bo tròn, đường cong mềm mại cùng kích thước tinh gọn tạo nên cảm giác ấm áp và nhẹ nhàng cho không gian. Mọi chi tiết nhỏ nhất đều được tính toán tỉ mỉ với triết lý “thiết kế vì con người”
Thêm vào đó, bàn cầu còn trang bị bộ công nghệ vệ sinh và các tính năng vượt trội so với thị trường. Người dùng có thể dễ dàng sử dụng nhờ điều khiển mạ kim loại màu bạc sang trọng.
Sản phẩm đã được quốc tế công nhận với giải thưởng danh giá Reddot Award 2022.
Sản phẩm có thể hòa hợp với đa dạng phong cách thiết kế phòng tắm. Dưới đây là phòng mẫu gợi ý từ TOTO:
Tính năng tự động thông minh:
Bàn cầu thông minh NEOREST RS tự tin mang đến trải nghiệm vệ sinh sạch sẽ và mới lạ hơn bao giờ hết với các tính năng tự động hiện đại, bao gồm:
– Nắp tự động đóng/mở;
– Chế độ sấy khô bằng khí ấm; Khử mùi; Xả tự động;
– Sưởi ấm bệ ngồi;
– Vòi rửa massage đa chức năng
Công nghệ làm sạch độc quyền của TOTO:
Công nghệ men CEFIONTECT: Lớp men sứ mịn màng được tráng trên toàn bộ bề mặt bàn cầu ngăn cản chất thải bám vào bề mặt; tạo hiệu quả chống bẩn chống dính.
Thiết kế vành kín RIMLESS và hệ thống xả TORNADO, Hybrid sinh thái siêu mạnh, siêu êm, tiết kiệm nước.
Công nghệ nước điện phân EWATER+ sử dụng nước điện phân giúp bàn cầu luôn sạch sẽ và hạn chế bám bẩn, hiệu quả diệt vi khuẩn đến 99,9%. Sau thời gian sử dụng, nước điện phân tự động chuyển thành nước thường, không gây hại cho người dùng và môi trường.
Đặc biệt, sản phẩm được tích hợp EWATER+ cho bệ ngồi – công nghệ mới nhất mà TOTO giới thiệu ra thị trường.
TOTO đề cao sự hài lòng và trải nghiệm vệ sinh tuyệt vời của người dùng với sản phẩm Bàn cầu thông minh NEOREST RS. Những tính năng thông minh và công nghệ hiện đại nhất sẽ giúp bạn luôn sạch sẽ, thoải mái và an toàn.
Thông tin chi tiết bàn cầu thông minh NEOREST RS
- Vật liệu: Sứ vệ sinh
- Loại xả: TORNADO HYBRID 3.8/3L (tự động)
- Nguồn điện: AC220~240V (50/60Hz)
- Tâm xả: 305mm (thoát thẳng)
Bản vẽ kỹ thuật
Lưu ý khi sử dụng
Nơi lắp đặt cần đảm bảo thông gió để hạn chế nồm ẩm, ảnh hưởng tới hệ thống điện của bàn cầu
Không xịt nước hay dung dịch tẩy rửa vào khe hở giữa bệ ngồi và lòng bàn cầu hoặc các kết nối nguồn điện.














