Kỹ thuật
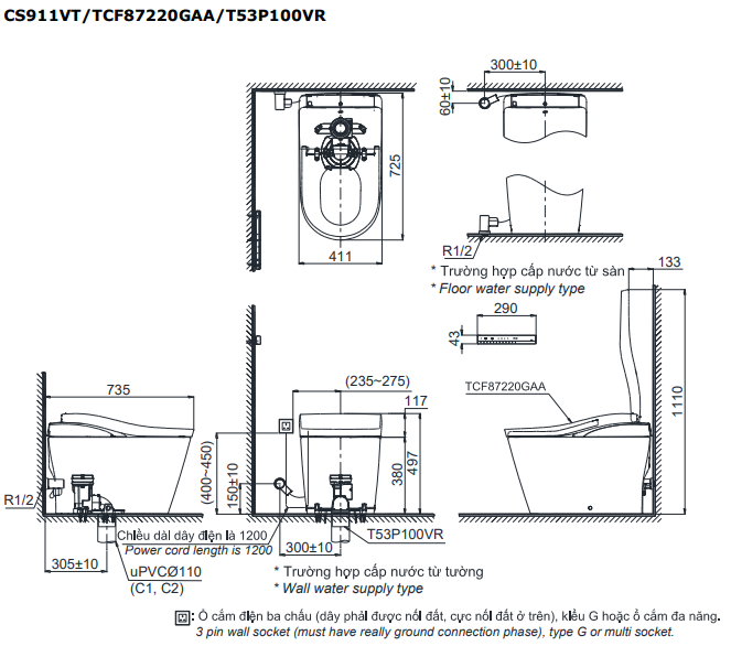
- Kích thước: L725 x W411 x H497 mm
- Màu sắc: Trắng sứ, Đen
- Hệ thống xả: Tornado
- Lượng nước xả: 3.8/3L
- Thiết kế: Thân dài, thân kín
- Tâm xả: 305mm
- Áp lực nước: 0.05 ~ 0.75 MPa
- Nguồn điện: 220V, 50/60Hz
- Màu bảng điều khiển: Đen
- Lưu ý: Bao gồm bích nối sàn, van dừng
Tính năng
- Men sứ chống bám bẩn CeFiONtect
- Hệ thống xả Tornado, Hybrid sinh thái siêu mạnh, siêu êm, tiết kiệm nước 3.8/3L
- Thiết kế vành kín dễ dàng vệ sinh
- Bảng điều khiển từ xa
- Công nghệ khử trùng Ewater+: vòi rửa, lòng bàn cầu, dưới bệ ngồi
- Tự động đóng/mở nắp, phun sương, sưởi ấm bệ ngồi, khử mùi, sấy khô
- Vòi rửa phun bọt khí massage đa chức năng
- Tự động xả sau mỗi lần sử dụng
Giới thiệu bàn cầu thông minh NEOREST LS
Bàn cầu thông minh NEOREST LS vừa được ra mắt tháng 8 năm 2023, thuộc Bộ sưu tập mới nhất của dòng bàn cầu cao cấp NEOREST. Với thiết kế hình dáng cong thoải, sản phẩm mang đến cảm giác mềm mại mà vững chãi, như ôm trọn cơ thể của người dùng.
Thêm vào đó, sắc đen điểm xuyết giữa nắp và thân cầu tạo nên điểm nhấn kết nối khiến tổng thể thiết kế hài hòa và độc đáo hơn. Bàn cầu được trang bị bộ công nghệ vệ sinh độc quyền của TOTO và các tính năng vượt trội so với thị trường. Người dùng có thể dễ dàng sử dụng nhờ điều khiển mạ kim loại màu đen sang trọng.
Đặc biệt, với sản phẩm này, bạn sẽ có thêm các lựa chọn màu sắc khác: Niken và Bạc.
Chính vì vậy, bàn cầu thông minh NEOREST LS đã nhận được nhiều giải thưởng quốc tế danh giá: Reddot Award 2022, IF Design Award 2022.
Sản phẩm có thể hòa hợp với đa dạng phong cách thiết kế phòng tắm. Dưới đây là phòng mẫu gợi ý từ TOTO:
Tính năng tự động thông minh:
Với các tính năng tự động hiện đại, bàn cầu thông minh NEOREST LS sẽ mang đến trải nghiệm vệ sinh sạch sẽ và mới lạ hơn bao giờ hết cho người dùng. Các tính năng tự động bao gồm:
– Nắp tự động đóng/mở;
– Chế độ sấy khô bằng khí ấm; Khử mùi; Xả tự động;
– Sưởi ấm bệ ngồi;
– Vòi rửa phun bọt khí massage đa chức năng
Công nghệ làm sạch độc quyền của TOTO:
Bàn cầu thông minh NEOREST LS được trang bị bộ công nghệ ưu việt, bao gồm:
Công nghệ men CEFIONTECT: Lớp men sứ mịn màng được tráng trên toàn bộ bề mặt bàn cầu ngăn cản chất thải bám vào bề mặt; tạo hiệu quả chống bẩn chống dính.
Thiết kế vành kín RIMLESS và hệ thống xả TORNADO, Hybrid sinh thái siêu mạnh, siêu êm, tiết kiệm nước.
Công nghệ nước điện phân EWATER+ cho vòi rửa và lòng bàn cầu: công nghệ này sử dụng nước điện phân để diệt vi khuẩn đến 99,9%, giúp bàn cầu luôn sạch sẽ và hạn chế bám bẩn. Sau thời gian sử dụng, nước điện phân tự động chuyển thành nước thường, không gây hại cho người dùng và môi trường.
Đặc biệt, sản phẩm được tích hợp EWATER+ cho bệ ngồi – công nghệ mới nhất mà TOTO giới thiệu ra thị trường.
TOTO đề cao sự hài lòng và trải nghiệm vệ sinh tuyệt vời của người dùng với sản phẩm Bàn cầu thông minh NEOREST LS. Những tính năng thông minh và công nghệ hiện đại nhất sẽ giúp bạn luôn sạch sẽ, thoải mái và an toàn.
Thông tin chi tiết bàn cầu thông minh NEOREST LS
- Vật liệu: Sứ vệ sinh
- Loại xả: TORNADO HYBRID 3.8/3L (tự động)
- Nguồn điện: AC220~240V (50/60Hz)
- Tâm xả: 305mm (thoát thẳng)
Bản vẽ kỹ thuật
Lưu ý khi sử dụng
Nơi lắp đặt cần đảm bảo thông gió để hạn chế nồm ẩm, ảnh hưởng tới hệ thống điện của bàn cầu
Tránh xịt nước trực tiếp và tẩy rửa bàn cầu với hóa chất có độ kiềm cao














