Thông tin bồn cầu Inax AC-602+CW-H18VN/BW1
- Tên sản phẩm: Bồn cầu hai khối nắp rửa điện tử CW-H18VN
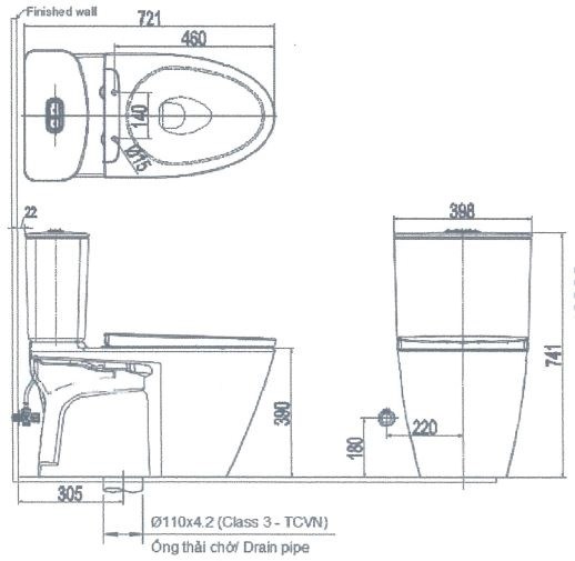
- Kích thước bồn cầu: 720x372x740 mm (DxRxC)
- Kích thước nắp: 536x472x173 mm (DxRxC)
- Bao gồm đế thải nước
- Bao gồm van T khóa nước
- Kiểu xả dạng nhấn 2 mức: 4.5L/3L
- Áp suất nước cấp: 0.06 – 0.75MPa
- Nguồn điện: AC 220V, 336W, 50Hz
- Công nghệ: Nhật Bản
- Xuất xứ: Việt Nam
- Bảo hành: 2 năm
Tính năng bồn cầu INAX nắp rửa điện tử AC-602/CW-H18VN
- Công nghệ Aqua Ceramic giúp bề mặt men sứ trắng sáng trong suốt thời gian sử dụng
- Nắp rửa được làm bằng vật liệu kháng khuẩn Ag+, các ion Ag+ ngăn chặn sự phát triển của vi khuẩn, kháng khuẩn (chỉ bệ ngồi)
- Thiết kế không vành Rim, dễ vệ sinh
- Một cửa xả xoáy, một cửa đẩy trợ lực
- Hai vòi phun rửa đại tiện và tiểu tiện tách biệt
- Có 3 mức điều chỉnh nhiệt độ nước
- Có 3 mức điều chỉnh nhiệt độ bệ ngồi
- Bảng điều khiển gắn liền nắp
- Sấy khô và Khử mùi nhanh
- Rơ le nhiệt, biến nhiệt chống rò rỉ điện
- Siêu tiết kiệm điện
Bản vẽ kích thước bồn cầu điện tử AC-602 CW-H18VN INAX












